|
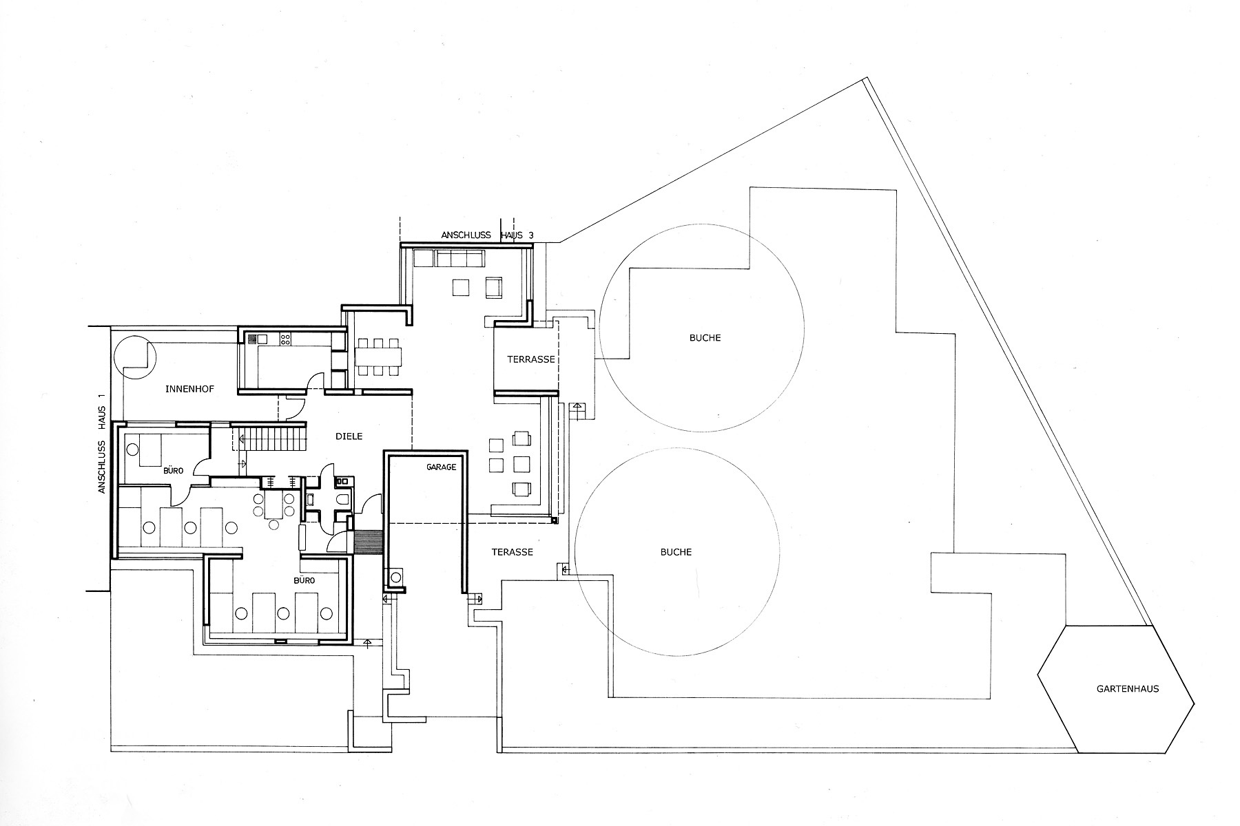
Jahr: 1964-1965 Adresse: Pücklerstraße 21, Dahlem Auftraggeber: Hans Bandel Funktion: Wohnhaus Zusammenarbeit: keine Angabe Archivmaterial bei: Berlinische Galerie |
Wohnhaus und Büro von Hans Bandel (Weiterlesen) Heute: 2013 sind Haus und Bäume durch den neuen Besitzer abgerissen. Nur das Gartenhaus erinnert an die historische Einbindung des alten Grundstückes.
|
|



